|
三片式法兰球阀产品简介: 三片式法兰球阀阀座采用弹性密封结构,密封可靠,启闭轻松。阀杆采用有倒密封的下装式结构,阀腔异常升压时,阀杆不会被冲出。阀体铸造采用工艺,结构合理、造型美观。驱动方式:手动、电动、气动。可设置90°开关定位机构,根据需要加锁以防止误操作。 三片式法兰球阀工作原理: 三片式法兰球阀是用带有圆形通道的球体作启闭件,球体随阀杆转动实现启闭动作的阀门。球阀的启闭件是一个有孔的球体,绕垂直于通道的轴线旋转,从而达到启闭通道的目的。球阀主要用于截断或接通管道和设备介质,也可用于流体的调节与控制,球阀流体阻力小,结构简单,体积小,重量轻,紧密可靠,操作维修方便,不会引起阀门密封面的侵蚀,适用范围广。 三片式法兰球阀产品特点: 1、 单阀座设计。消除了阀门中腔介质因异常升压而影响使用安全的问题。 2、 低扭矩设计。特殊结构设计的阀杆,只需配一个小手把阀门就能轻松启闭。 3、 启闭无摩擦。这一功能完全解决了传统阀门因密封面之间相互摩擦而影响密封的问题。 4、 三片式结构。对装在管道上的阀门可直接在线检查与维修,能有效减少装置停车,降低成本。 5、 楔形密封结构。阀门是靠阀杆提供的机械力,将球楔压到阀座上而密封,使阀门的密封性不受管线压差变化的影响,在各种工况下密封性能都有可靠保证。 6、 密封面的自清洁结构。当球体倾离阀座时,管线中的流体沿球体密封面成360°均匀通过,不仅消除了高速流体对阀座局部的冲刷,也冲走了密封面上的聚积物,达到自清洁的目的。
三片式法兰球阀概述: 三片式法兰球阀结构,对装在管道上的阀门可直接在线检查与维修,能有效减少装置停车,降低成本; 三片式球阀楔形密封结构,阀门是靠阀杆提供的机械力,将球楔压到阀座上而密封,使阀门的密封性不受管线压差变化的影响,在各种工况下密封性能都有可靠保证。 三片式法兰球阀单阀座设计,消除了阀门中腔介质因异常升压而影响使用安全的问题;三片式美标球阀低扭矩设计,特殊结构设计的阀杆,只需配一个小手把阀门就能轻松启闭;启闭无摩擦,这一功能完全解决了传统阀门因密封面之间相互摩擦而影响密封的问题。
三片式法兰球阀设计标准: APPLECABLE STANDARDS: 防爆中轴/全流Blow-out Proof stem/Full port 设计和制造标准按照Design: ASME B16.34,API608; 结构长度按照face toface : ASME B16.10; 法兰端尺寸按照End Flange:ASME B16.5; 检验和测试按照Test: API598; 防火设计测试Fire Safe:API607;
三片式法兰球阀产品特性: 阀杆带有防静电设置 阀杆防脱出装置设计 钢球球槽上有泄压孔 采用脱腊精密铸造 三片式法兰球阀主要材料表:
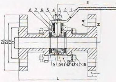
三片式法兰球阀尺寸图:
三片式法兰球阀外形尺寸表:
三片式法兰球阀产品应用: 三片式法兰球阀的主要特点是本身结构紧凑,易于操作和维修,三片式法兰球阀适用于水、溶剂、酸和天然气等一般工作介质,而且还适用于工作条件恶劣的介质,如氧气过氧化氢,甲烷和乙烯等。要求严格切断的工况。 |
-
单阀座设计。消除了阀门中腔介质因异常升压而影响使用安全的问题。
-
低扭矩设计。特殊结构设计的阀杆,只需配一个小手把阀门就能轻松启闭。
-
可选装配电动/气动执行器可变成电动/气动开关阀或电动/气动切断阀。
-
结构简单、体积小、重量轻。
-
维修方便,球阀结构简单,密封圈一般都是活动的,拆卸更换都比较方便。
-
根据用户提供的流量、压力提供选型规格书及控制方案图。


