|
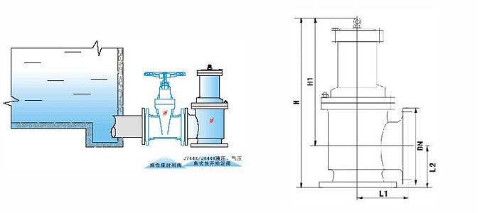
J744X液动角式排泥阀原理作用: J644X气动角式排泥阀,J744X液动角式排泥阀又叫盖阀,常用于城市水厂、污水处理厂的沉淀池底排放污泥用。J644X气动角式排泥阀,J744X液动角式排泥阀的适用介质为原生污水,介质的温度一般应小于50℃,其工作水深小于10米。J644X气动角式排泥阀,J744X液动角式排泥阀的动力源主要有:手动、气动、电动、液动;结构形式主要有:活塞、隔膜、角型。注意:排泥阀应安装在原管线的较低点,并选用与排污水流成切线的排泥三通,还应考虑到排放过程中冲刷对附件基础的影响,排泥阀安装完毕后应及时关闭。 J644X气动角式排泥阀,J744X液动角式排泥阀是一种由液压源或气动源作执行机构的角型截止类阀门。通常成排安装在沉淀池底部外侧壁,用以排除池底沉淀的泥砂和污物。该阀液压缸之活塞为L形皮碗,密封性能好,经久耐用,阀门密封副亦为橡胶密封,无泄漏。可通过电动二位四通换向电磁阀实现远程控制,操作方便,安全可靠。 J744X液动角式排泥阀性能特点: 气动液动角式排泥阀升降方便快速,修理简单,密封性能好,经久耐用,阀门密封副亦橡胶密封,无泄漏;可以排除池底泥污,也可安装在工作介质水、气、油等工业管道中,作截流用。 J744X液动角式排泥阀技术参数:
J744X液动角式排泥阀部件材质:
J744X液动角式排泥阀外形尺寸:
|
||||||||||||||||||||||||||||||||||||||||||||||||||||||||||||||||||||||||||||||||||||||||||||||||
-
启闭方便迅速、省力、流体阻力小,可以经常操作。
-
具有体积小,重量轻,性能可靠,配套简单,流通能力大。
-
常用于城市水厂、污水处理厂的沉淀池底排放污泥用。
-
阀门密封副亦橡胶密封,无泄漏。
-
升降方便快速,修理简单,密封性能好,经久耐用
-
根据用户提供的流量、压力提供选型规格书及控制方案图。


