|
P41X快速排气阀原理作用: P41X快速排气阀用于管路上的较该店或有闭气的地方和水泵出口处,排除管线内的气体来疏通管道,达到正常工作。如不装P41X快速排气阀,管道随时出现气阻,使管道出水容量达不到设计要求;其次,管道在运转时出现停泵、停电现象会产生负压引起管道振动或破裂,快速排气阀能迅速把空气吸入管内,防止管道振动或破裂。 当水进入管线内时,P41X快速排气阀浮球停在球桶下部进行大量排气,当气排完时,水进入阀内通过球桶把球浮起到关闭,停止排气。管道在正常运转时自然会产生少量气体,这些气体会集中到管内上部到相当程度,阀内水位下降,浮球顺水下降气体从小孔排出。如出现停泵停电,管内水流空时,随时会出现负压,浮球顺水下降,打开小孔带动大孔进行大量补气,确保管道安全。 P41X快速排气阀性能特点: 结构简单,性能稳定,安全可靠。 P41X快速排气阀技术参数:
P41X快速排气阀部件材质:
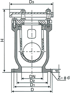
P41X快速排气阀外形尺寸:
|
-
能够排除管道中的气体,减少阻力节约能源。
-
启闭方便迅速、省力、流体阻力小,可以经常操作。
-
具有体积小,重量轻,性能可靠,配套简单,流通能力大。
-
排气阀结构简单,安装操作方便。
-
快速排气阀结构简单,性能稳定,安全可靠。
-
根据用户提供的流量、压力提供选型规格书及控制方案图。


