|
Q11F三片式不锈钢丝扣球阀原理作用: Q11F三片式不锈钢丝扣球阀的关闭件是个球体,球体绕阀体心线作旋转来达到开启、关闭的一种阀门。 Q11F三片式球阀在管路中主要用来做切断、分配和改变介质的流动方向。 Q11F三片式球阀是由三部分组成,两边的阀盖和中间阀体,三片式球阀 不同于二片式球阀和一片式球阀的地方在于拆卸维修方便。 Q11F三片式不锈钢丝扣球阀性能特点: ①流体阻力小,其阻力系数与同长度的管段相等; ②结构简单、体积小、重量轻; ③紧密可靠,现球阀的密封面材料广泛使用塑料、密封性好,在真空系统中也已广泛使用; ④操作方便,开闭迅速,从全开到全关只要旋转90°,便于远距离的控制; ⑤维修方便,球阀结构简单,密封圈一般都是活动的,拆卸更换都比较方便。 Q11F三片式不锈钢丝扣球阀技术参数:
Q11F三片式不锈钢丝扣球阀部件材质:
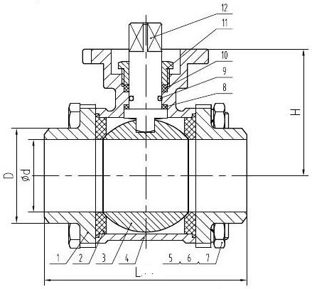
Q11F三片式不锈钢丝扣球阀外形尺寸:
|
-
流体阻力小,其阻力系数与同长度的管段相等。
-
操作方便,开闭迅速,从全开到全关只要旋转90°,便于远距离的控制。
-
紧密可靠,目前球阀的密封面材料广泛使用塑料、密封性好,在真空系统中也已广泛使用。
-
结构简单、体积小、重量轻。
-
维修方便,球阀结构简单,密封圈一般都是活动的,拆卸更换都比较方便。
-
根据用户提供的流量、压力提供选型规格书及控制方案图。


